The City Capital

THE CITY CAPITAL (UPCOMING PROJECT)

Project Overview

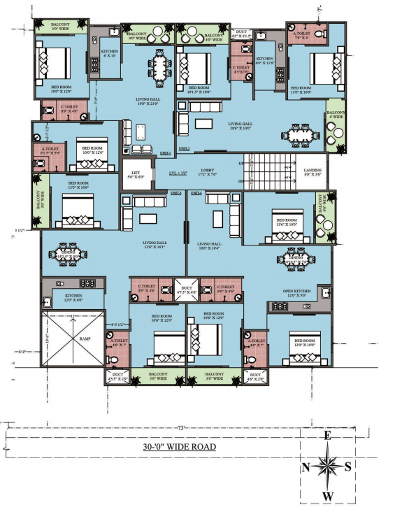
The proposed B+S+11 (HI RISE) building, towering at 140 feet, stands as a beacon of modernity in North Bihar. Positioned along a vital four-lane road, linking over 10 major districts within an hour's drive, it promises unparalleled connectivity and convenience. The proximity to the proposed Patahi Muzaffarpur airport, just 2 kilometers away, further enhances accessibility and economic potential. This development marks a pioneering step for North Bihar, offering its residents their first taste of high-rise living complemented by world-class amenities. With over 100 luxurious flats, including duplex options with land, and commercial spaces, the project caters to diverse preferences and income levels. This visionary project not only enriches the local landscape but also presents a lucrative opportunity for investors, promising mutual benefits for all stakeholders.

2 BHK Pricing Plan

Download

3 BHK Pricing Plan

Download

Amenities & Others Advantages

Experience tranquility and convenience in our meticulously designed residential enclave. Embrace the serenity of a temple, lush playground, and pollution-free surroundings. Safety is paramount with state-of-the-art security systems and fire safety measures. Enjoy rejuvenating amenities like a jogging track, yoga center, and community hall. Our eco-friendly approach includes solar street lights and a go-green concept. With seamless highway connectivity and EV charging points, accessibility is unmatched. Indulge in modern comforts like high-speed lifts, digital amenities, and uninterrupted power backup. Your peace of mind is our priority with unbreakable security and natural ventilation in every flat. Welcome to your dream home.

About Us Image <%-- About Us Image About Us Image--%>
Category Details
Foundation RAF Foundation
RCC Structure
Structure Sub-structure Beam
Superstructure Frame Structure
Roof R.C.C. Slab (M20)
Wall Finishing Plaster with Putty or P.O.P
Floor Finish Digital Floor Tiles/Custom Marble
Kitchen Cooking Counter Top Granite Slab with steel sink
3 feet height color tiles above
Toilet Floor – Digital Tiles with ISI
Wall-Color of 5 Feet height Glazed Tiles
Door Main Door - 32mm ply & all other - Flash door 32mm thick
Bathroom ACP door
Window Fully Glazed Steel Windows Glass with aluminum Frame
Sanitary Pipe Fitting PVC Pipe Fitting – PVC Pipes
Dining basin Space 1 wash Basin, Toilet- Indian/Western Closet with Flush Tank
Electrical Fitting Branded Electrical Supply
Electric supply will be available From NBCL
Generator Silent Gen Set will be given To society
Water Supply Round the clock water supply with a common water tank
Sewerage Appropriate arrangement for Disposal of rainwater & suitable tank for sewerage disposal
Drainage Well-planned drainage system
Road Internal Road – P.C.C